Другие фото в проекте
Описание
- Статус:
- Визуализация
- Год:
- 0
- Стиль:
- современный
- Тип:
- гостиная, ванная, спальня, кабинет, прихожая, другое
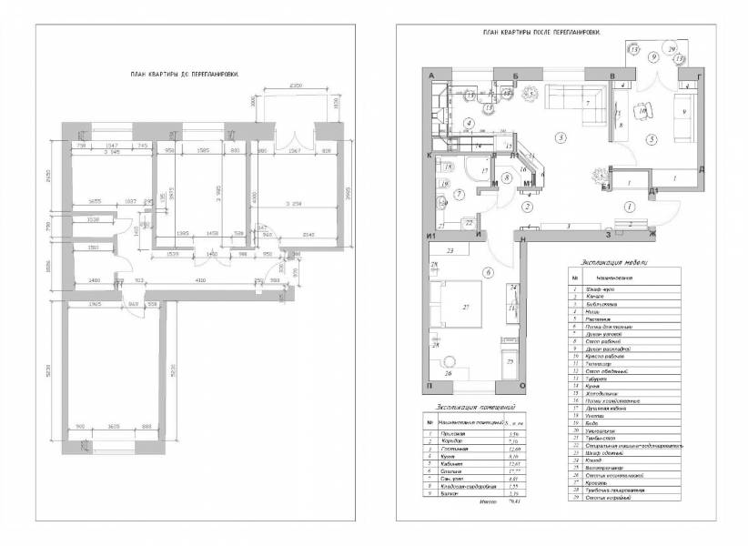
Квартира проектировалась для семьи из трех человек. Дочь уже взрослая и приезжает в гости. Ее комната также служит кабинетом.


















