Другие фото в проекте
Описание
- Статус:
- Реализован
- Год:
- 0
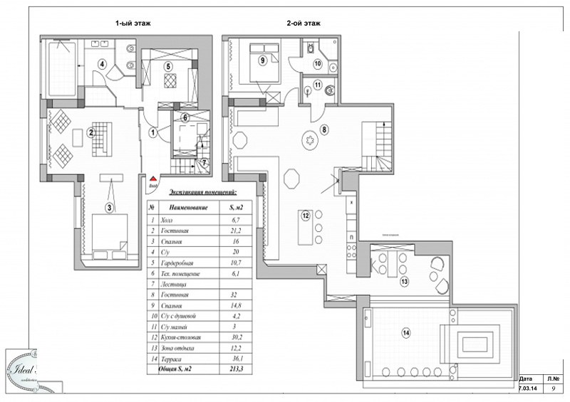
ОБЪЕКТ №32
Яркая и динамичная двух-этажная квартира. Особенность этого объекта – контраст во всем. Гармоничное сочетание черного и белого, современности и классики. Большое количество стекла и глянцевых поверхностей, сбалансировано правильным многофункциональным освещением.

























































