Другие фото в проекте
Описание
- Статус:
- Реализован
- Год:
- 2015
- Стиль:
- современный
- Тип:
- входная группа, приемная, переговорная зона, зона отдыха, рабочая зона, другое
Посыл дружелюбия передан в дизайне офиса через тему экологичности, подчеркнутую присутствием в интерьере зеленого – в виде живых растений, принтов с изображениями растений и ярких зеленых поверхностей.
Бизнес-задача
В русле тренда на обращение к европейским ценностям госучреждения Киева приобретают новый облик. Именно этот посыл был сформулирован в качестве главной задачи при проектировании приемной одной из государственных структур – посредством дизайна выразить идею о современном, демократичном и открытом характере взаимоотношений государства и населения. Поэтому в офисном пространстве, названном авторами «зеленый офис», сложно найти какие-либо признаки кабинета госчиновника, по крайней мере, в привычном представлении, – здесь их просто нет. Все здесь «сигналит» о либеральности, дружелюбии и экологичности.
Дизайн-идея
Экологичность – непременная составляющая проектов архитектурного бюро Юрия Рынтовта. Узнаваемые декораторские приемы RYNTOVT DESIGN позволяют офису выглядеть свежо и индивидуально. Бетонные полы и пилоны, минималистичная мебель авторского дизайна, яркие цветовые акценты и обилие зеленых растений – вот набор решений, из которых скомпоновано пространство.
Для изготовления мебели в этом проекте вместо привычного для мастерской массива дерева была использована фанера – более функциональный и экономичный материал. Авторские вещи из фанеры подчеркнуто лаконичны, однако все они обладают небольшими, но заметными нюансами, которые возможны только при индивидуальном подходе к созданию серии. Так, каждый рабочий стол украшен интарсией. Длинный стол для переговоров в центре имеет углубление для поддонов с растениями, которое при желании можно спрятать под крышкой, сделав рабочую поверхность идеально гладкой. Стойка ресепшна дополнена натуральным природным элементом. А экономичные светодиодные светильники над столами представляют собой любопытный конгломерат с кашпо.
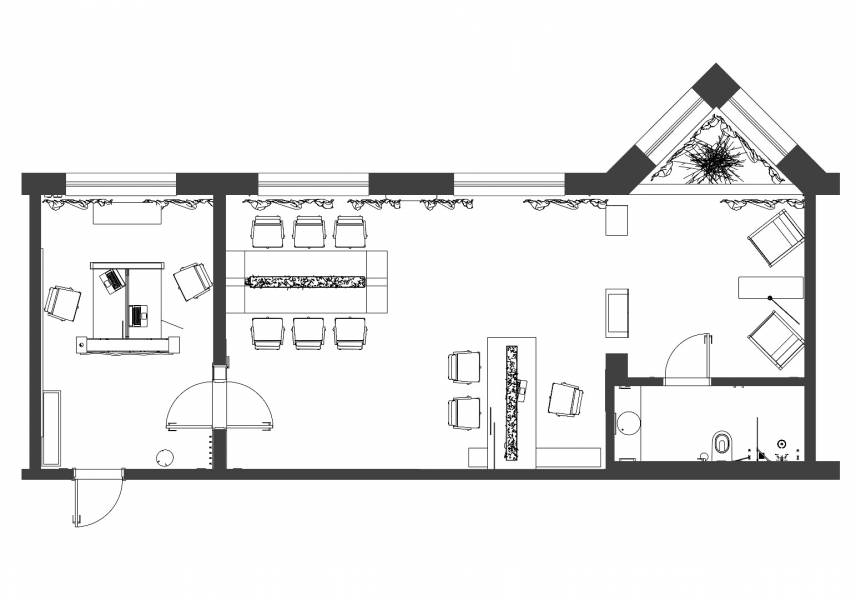
Организация пространства
Офис состоит из нескольких функциональных зон – приемной, переговорной, кабинета, зоны отдыха – организованных как комфортное свободно перетекающее пространство. На минимальной площади разместили рабочие места для двух человек и необходимую оргтехнику, а также кофе-машину. Чтобы оборудование не привносило визуальный «шум» в лаконичное решение интерьера, его спрятали за большим стеклом, украшенным принтом. Бетонный пилон, разделяющий рабочую комнату и зону отдыха, вмещает небольшой скрытый гардероб для сотрудников. Здесь есть и открытый гардероб для посетителей, решенный в лучших традициях экологического дизайна – просто, декоративно и функционально.
Оксана Рынтовт:
В этом проекте мы ставили своей задачей создать альтернативу традиционному представлению о том, каким может быть интерьер официальной структуры, и найденный в результате образ оказался сильно отличающимся от того, что все привыкли видеть в кабинетах чиновников. Прямо с порога здесь читается общее «гуманное» настроение проекта, где все зоны равнозначны: в приемной использованы те же элементы и материалы, что и далее в кабинете, переговорной и зоне отдыха.





























